Discover the Beauty of 3 Bedroom 1 Storey House Plans
Are you looking for the perfect balance between space, comfort, and practicality in your dream home? Look no further than 3 Bedroom 1 Storey House Plans. These versatile house plans offer a single level layout with three bedrooms, ideal for families, retirees, or anyone looking for a cozy yet spacious living space.
Knowledge
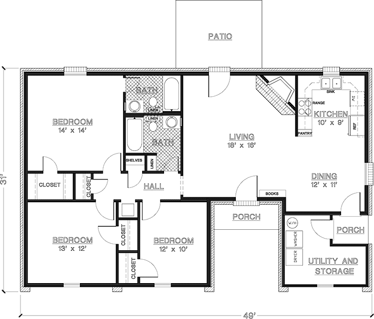
When it comes to 3 Bedroom 1 Storey House Plans, there are several key features that make them stand out. First and foremost, the single-level layout offers convenience and accessibility for people of all ages. Whether you have young children or are planning for your retirement years, a one-story home eliminates the need to navigate stairs on a daily basis.
Additionally, the three bedrooms in these house plans provide ample space for a growing family, guests, or a home office. The layout typically includes a master bedroom with an ensuite bathroom, as well as two additional bedrooms that can be used for children, guests, or hobbies. The open-concept living areas create a seamless flow between the kitchen, dining room, and living room, perfect for entertaining or simply enjoying family time.
Another advantage of 3 Bedroom 1 Storey House Plans is the flexibility they offer in terms of design and customization. Whether you prefer a modern, traditional, or farmhouse style, these house plans can be tailored to suit your unique taste and preferences. From selecting finishes and fixtures to adding personal touches like a covered porch or outdoor living space, the possibilities are endless.
Furthermore, the practicality of a one-story home extends to maintenance and energy efficiency. With all living spaces on a single level, cleaning and upkeep are simplified, saving you time and effort. Additionally, heating and cooling a one-story home is typically more cost-effective than a multi-story house, resulting in lower utility bills and a smaller environmental footprint.
How to download and save it
Conclusion
In conclusion, 3 Bedroom 1 Storey House Plans offer a perfect blend of functionality, comfort, and style for a wide range of homeowners. Whether you are starting a family, downsizing, or looking for a forever home, these house plans provide the space and convenience you need. The target audience for these plans includes families, retirees, and anyone seeking a practical yet beautiful living space.
Overall, investing in a 3 Bedroom 1 Storey House Plan is a smart choice for those who value convenience, flexibility, and timeless design. With the ability to customize the layout to suit your needs and preferences, you can create a home that truly reflects your lifestyle and personality. Embrace the charm and simplicity of a one-story living with these versatile house plans.

