American House Plan Design: A Comprehensive Guide
American house plan design is a popular choice for homeowners looking to build their dream home. With its unique blend of traditional and modern elements, American house plans offer a timeless appeal that can suit a variety of tastes and preferences. In this article, we will explore the key features of American house plan design, how to download and save it, and why it matters in today’s housing market.
Knowledge
When it comes to American house plan design, there are several key elements to consider. One of the defining features of American house plans is their emphasis on space and functionality. These homes typically feature open floor plans, large windows, and high ceilings to create a sense of airiness and light. Additionally, American house plans often include features such as front porches, gabled roofs, and symmetrical facades that give them a classic and inviting look.
Another important aspect of American house plan design is the use of quality materials and craftsmanship. American homes are known for their attention to detail and high-quality construction, which can be seen in everything from the exterior siding to the interior finishes. Whether you prefer a more traditional or modern style, American house plans offer a range of options to suit your needs.
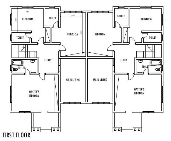
In terms of layout, American house plans typically feature a main living area on the first floor, with bedrooms and additional living spaces on the upper floors. This layout allows for a seamless flow between rooms and provides ample space for entertaining and relaxing. Whether you’re looking for a cozy bungalow or a spacious family home, American house plans offer a variety of options to choose from.
How to download and save it
Conclusion
American house plan design is a versatile and timeless choice for homeowners looking to create their dream home. With its blend of traditional and modern elements, American house plans offer a unique aesthetic that can suit a variety of tastes and preferences. Whether you’re looking for a cozy cottage or a spacious estate, American house plans provide a range of options to choose from. By understanding the key features of American house plan design and how to download and save it, you can create the perfect home for you and your family.
In conclusion, American house plan design is ideal for those who appreciate quality craftsmanship, timeless style, and functional layouts. Whether you’re a first-time homebuyer or a seasoned homeowner, American house plans offer something for everyone. With their attention to detail, inviting aesthetic, and versatility, American house plans are a popular choice in today’s housing market. Consider incorporating American house plan design into your next home project and experience the timeless appeal for yourself.

