Explore the Beauty of 3 Bedroom 1 Story House Plans
Are you looking to build your dream home with a perfect blend of space and comfort? Look no further than the exquisite 3 Bedroom 1 Story House Plans. These plans offer a practical and functional layout that is ideal for families of all sizes. In this article, we will delve into the details of these house plans, covering everything from the design elements to the benefits they offer. Let’s take a closer look at why 3 Bedroom 1 Story House Plans are a popular choice among homeowners.
Knowledge
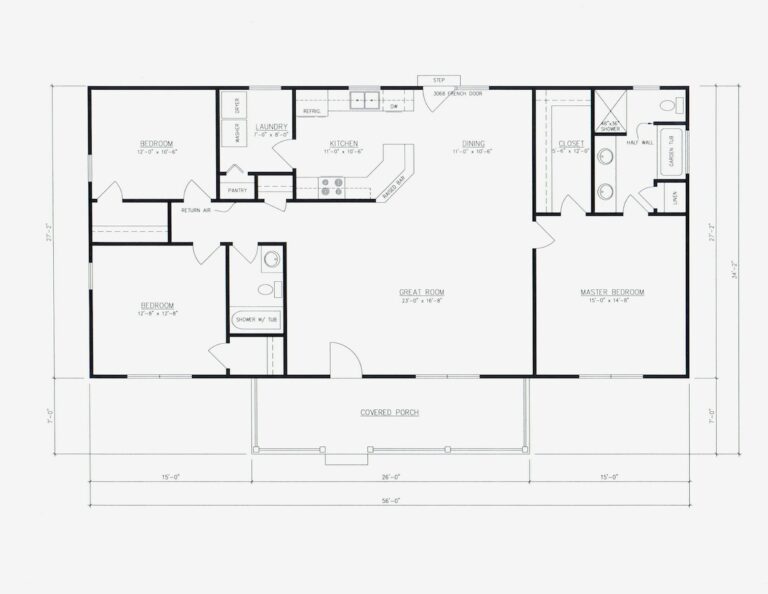
When it comes to 3 Bedroom 1 Story House Plans, there are several key features that set them apart from other home designs. These plans typically include a master bedroom with an ensuite bathroom, as well as two additional bedrooms that share a common bathroom. The open-concept layout of these homes creates a seamless flow between the living room, dining area, and kitchen, making it easy to entertain guests or keep an eye on children while preparing meals.
One of the main advantages of a 3 Bedroom 1 Story House Plan is the convenience of having all living spaces on a single level. This makes it easy for individuals with mobility issues or young children to move around the home without having to navigate stairs. Additionally, the single-story design allows for better energy efficiency, as heating and cooling systems can be more easily controlled throughout the house.
3 Bedroom 1 Story House Plans come in a variety of architectural styles to suit different preferences. From traditional ranch-style homes to modern farmhouse designs, there is a plan to fit every taste. These plans also often feature high ceilings, large windows, and outdoor living spaces such as porches or patios, allowing homeowners to enjoy the beauty of their surroundings.
There are numerous benefits to choosing a 3 Bedroom 1 Story House Plan for your next home. In addition to the convenience of a single-story layout, these plans offer ample living space for families to spread out and relax. The separation of the bedrooms from the main living areas provides privacy and quiet retreats for each family member. Furthermore, the open-concept design creates a sense of spaciousness and allows for easy communication between rooms.
How to download and save it
Conclusion
3 Bedroom 1 Story House Plans are the perfect choice for families looking for a comfortable and functional home design. With their practical layout, convenient features, and stylish design elements, these plans offer everything you need to create your dream home. Whether you’re a first-time homebuyer or looking to downsize to a more manageable space, 3 Bedroom 1 Story House Plans are sure to meet your needs.
In conclusion, the key strengths of 3 Bedroom 1 Story House Plans lie in their versatility, efficiency, and comfort. These plans are ideal for families of all sizes and offer a range of design options to suit different tastes. The target audience for these house plans includes anyone looking for a well-designed, single-story home that maximizes space and functionality.
As the housing market continues to evolve, 3 Bedroom 1 Story House Plans remain a popular choice for homeowners seeking a balance of style and practicality. With their timeless appeal and modern amenities, these plans are sure to stand the test of time. Consider the benefits of choosing a 3 Bedroom 1 Story House Plan for your next home and experience the beauty of this timeless design.

