Exploring 40X30 House Plans: The Perfect Blueprint for Your Dream Home
When it comes to designing your dream home, the 40X30 house plan is a popular choice that offers the perfect balance of space, functionality, and style. In this article, we will delve into the world of 40X30 house plans, exploring what makes them so appealing and how you can download and save your very own blueprint.
Knowledge
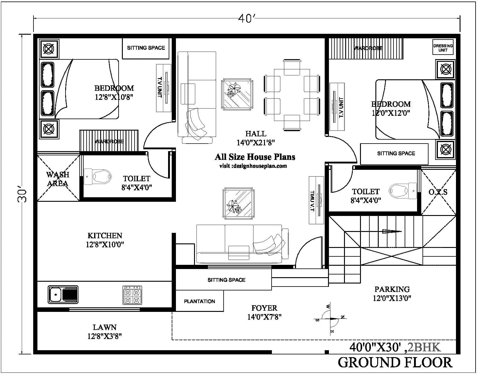
Before diving into the specifics of 40X30 house plans, it’s important to understand the basics. These plans typically feature a total area of 1200 square feet, making them ideal for small to medium-sized families looking for a cozy yet spacious home. The layout of a 40X30 house plan often includes 2-3 bedrooms, 2 bathrooms, a living room, kitchen, dining area, and possibly a small outdoor space.
One of the key advantages of a 40X30 house plan is its versatility. Whether you prefer a modern, minimalist design or a more traditional aesthetic, these plans can be customized to suit your personal style and preferences. Additionally, the compact size of a 40X30 house plan makes it a cost-effective option for those looking to build their dream home on a budget.
Furthermore, 40X30 house plans are designed to maximize space efficiency, ensuring that every square foot is utilized effectively. This means that you can enjoy all the amenities and features you desire without sacrificing on comfort or functionality.
How to download and save it
Downloading and saving a 40X30 house plan is a simple and straightforward process. There are numerous websites and online platforms that offer a wide selection of house plans, including 40X30 designs. To find the perfect plan for your dream home, simply browse through the available options, select the one that best suits your needs, and proceed to download it to your device.
Once you have downloaded your chosen 40X30 house plan, be sure to save it in a secure location where you can easily access it when needed. Whether you plan to build your home in the near future or are simply exploring your options, having a copy of your chosen blueprint will ensure that you are prepared for the next steps in the home-building process.
Conclusion
In conclusion, 40X30 house plans offer the perfect blueprint for creating your dream home. With their versatile design, space efficiency, and cost-effective nature, these plans are ideal for families looking to build a comfortable and stylish home without breaking the bank. Whether you are a first-time homebuyer or a seasoned homeowner, a 40X30 house plan can provide you with the perfect foundation for your future.
Overall, the key strengths of 40X30 house plans lie in their flexibility, functionality, and affordability. Their target audience includes individuals and families who value smart design, practicality, and style in their living spaces.
As you embark on your journey to build your dream home, consider the benefits of a 40X30 house plan and how it can help you achieve your vision. With the right plan in hand, you can turn your dream home into a reality and create a space that reflects your unique personality and lifestyle.

