Floor Plan Of A Two Story House: A Comprehensive Guide
Are you considering building a two-story house and looking for the perfect floor plan to suit your needs? Look no further! In this article, we will delve into the intricacies of a two-story house floor plan, exploring its layout, design, and functionality. Whether you are a homeowner, architect, or simply curious about residential construction, this guide will provide you with valuable insights into the world of two-story house floor plans.
Knowledge
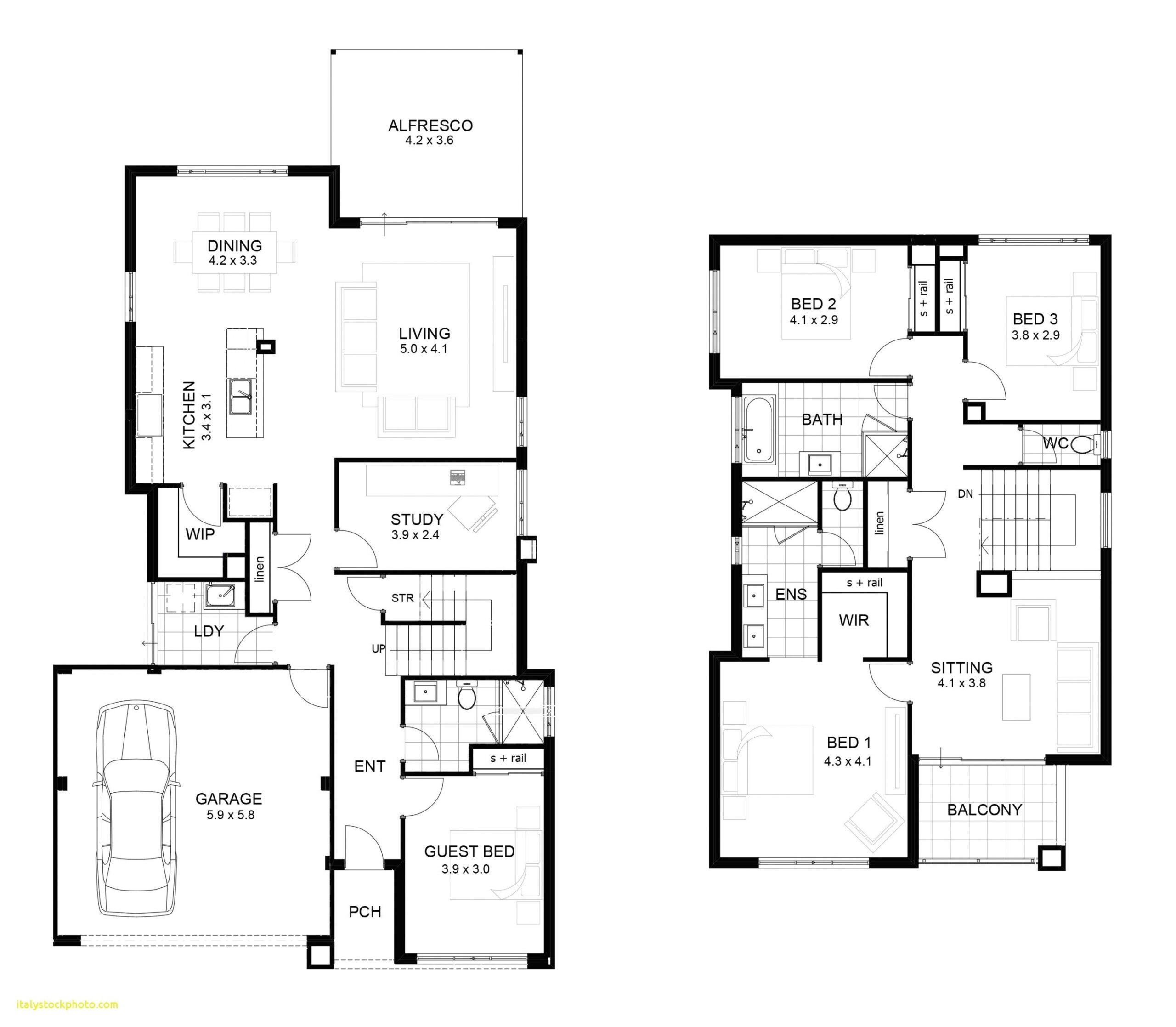
When it comes to two-story house floor plans, there are several key aspects to consider. The layout of a two-story house typically includes a main level with common areas such as the living room, kitchen, and dining room, while the upper level houses the bedrooms and bathrooms. The design of the floor plan should prioritize functionality, flow, and aesthetic appeal.
One of the main advantages of a two-story house floor plan is its ability to maximize space. By building vertically, homeowners can make the most of their lot size while creating separate areas for living and sleeping. Additionally, two-story houses often offer better views and natural light compared to single-story homes.
When designing a two-story house floor plan, it is important to consider the placement of rooms, windows, and doors to ensure a cohesive and efficient layout. Factors such as privacy, noise control, and accessibility should also be taken into account to create a comfortable and livable space.
Furthermore, the exterior design of a two-story house should complement the floor plan, with features such as balconies, porches, and rooflines adding character and curb appeal. Whether you prefer a traditional, modern, or eclectic style, there are endless possibilities for customizing a two-story house to suit your personal taste and lifestyle.
How to download and save it
Conclusion
In conclusion, a two-story house floor plan offers a versatile and functional layout for homeowners looking to maximize space and create a comfortable living environment. With careful consideration of design elements and practicality, a two-story house can provide the perfect balance of style and functionality.
Overall, the target audience for a two-story house floor plan includes homeowners, architects, builders, and real estate professionals looking to create or market a two-story residential property. By understanding the key features and benefits of a two-story house floor plan, individuals can make informed decisions when designing, building, or purchasing a two-story home.
As the housing market continues to evolve, the demand for well-designed and efficient two-story houses remains strong. Whether you are planning to build a new home or renovate an existing property, the floor plan of a two-story house offers endless possibilities for customization and personalization.

