Exploring 3 Bedroom Ranch House Plans
Are you in the market for a spacious and functional home design that offers convenience and comfort? Look no further than 3 Bedroom Ranch House Plans. These plans are perfect for individuals and families looking for a single-story layout that encompasses style and practicality. In this article, we will delve into the details of 3 Bedroom Ranch House Plans, discussing their features, benefits, and why they are a popular choice among homeowners.
Knowledge
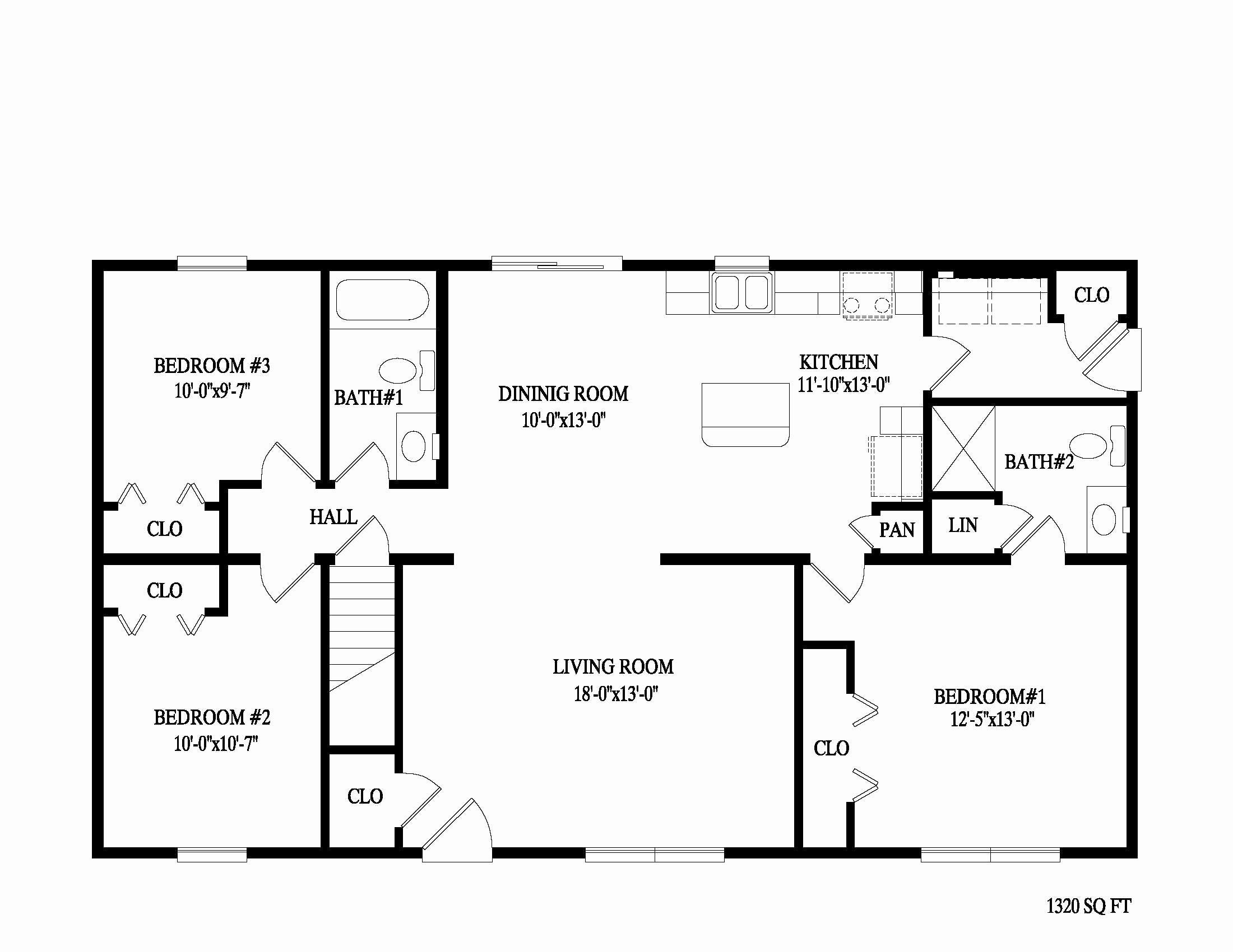
When it comes to 3 Bedroom Ranch House Plans, there are several key features that set them apart from other home designs. These plans typically include three bedrooms, a living room, a kitchen, and one or two bathrooms, all on a single level. This layout is ideal for those who prefer easy access to all areas of the home without the need to navigate stairs.
One of the main advantages of 3 Bedroom Ranch House Plans is the flexibility they offer. Homeowners have the option to customize the design to suit their specific needs and preferences. Whether you want to add a home office, a larger kitchen, or a master suite with a walk-in closet, the possibilities are endless with these plans.
In addition to their practical layout, 3 Bedroom Ranch House Plans are also known for their curb appeal. These homes often feature a traditional ranch-style exterior with a low-pitched roof, large windows, and a welcoming front porch. The timeless design of these houses ensures that they blend seamlessly into any neighborhood.
Another key feature of 3 Bedroom Ranch House Plans is their efficient use of space. The open floor plan allows for easy flow between the living room, kitchen, and dining area, making it ideal for entertaining guests or spending quality time with family. Additionally, the single-story layout eliminates the need for wasted space on stairs, hallways, or unused rooms.
How to download and save it
Looking to download and save your very own 3 Bedroom Ranch House Plan? There are numerous online platforms and websites that offer a wide selection of plans to choose from. Simply browse through the available options, select the plan that best suits your needs, and follow the instructions to download the file to your computer or mobile device.
Once you have downloaded the plan, you can work with a professional architect or designer to customize the layout to your liking. Whether you want to make minor adjustments or completely redesign certain aspects of the plan, a skilled professional can help bring your vision to life.
Conclusion
In conclusion, 3 Bedroom Ranch House Plans are a popular choice for homeowners seeking a practical, stylish, and functional home design. With their flexible layout, curb appeal, and efficient use of space, these plans offer the perfect combination of comfort and convenience. Whether you are a first-time homebuyer, a growing family, or an empty nester looking to downsize, 3 Bedroom Ranch House Plans are sure to meet your needs.
Overall, the key strengths of 3 Bedroom Ranch House Plans lie in their versatility, timeless design, and ease of customization. Their target audience includes individuals and families of all sizes who value practicality, style, and comfort in their living space.
As the housing market continues to evolve, 3 Bedroom Ranch House Plans remain a popular choice among homeowners. Their single-story layout, open floor plan, and traditional exterior make them a timeless and versatile option for those looking to create their dream home.

