1200 Sq Ft 2 Bedroom House Plans: The Perfect Blend of Comfort and Efficiency
When it comes to finding the ideal home that balances space, style, and functionality, 1200 Sq Ft 2 Bedroom House Plans are an excellent choice. These house plans offer the perfect combination of comfort and efficiency, making them a popular choice for many homeowners. In this article, we will explore everything you need to know about these plans, including their features, benefits, and how to download and save them.
Knowledge
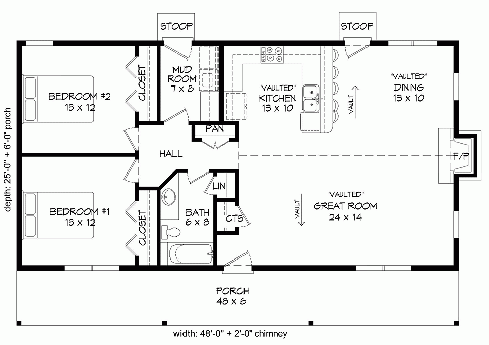
1200 Sq Ft 2 Bedroom House Plans are designed to maximize living space while maintaining a sense of coziness and warmth. These plans typically feature two bedrooms, making them ideal for small families, couples, or individuals looking for a comfortable living space without unnecessary excess.
One of the key benefits of these house plans is their versatility. With 1200 square feet of space, homeowners have the flexibility to customize their living areas to suit their needs and preferences. Whether you prefer an open-concept layout, separate living and dining areas, or a designated home office space, these house plans can be easily adapted to accommodate your lifestyle.
In addition to their flexibility, 1200 Sq Ft 2 Bedroom House Plans are also known for their efficiency. By maximizing every square foot of space, these plans offer practical and functional living areas without any wasted space. This efficiency not only makes the most of your budget but also ensures that every room serves a purpose and contributes to the overall comfort of the home.
Furthermore, these house plans often include features such as walk-in closets, en-suite bathrooms, and ample storage space, providing homeowners with the convenience and organization they desire. Additionally, the layout of these plans is designed to optimize natural light and ventilation, creating a bright and airy atmosphere throughout the home.
How to download and save it
To download and save 1200 Sq Ft 2 Bedroom House Plans, you can explore online resources such as home design websites, architectural firms, or house plan marketplaces. These platforms offer a wide selection of house plans, including 1200 Sq Ft 2 Bedroom options, that you can browse and choose from based on your preferences and requirements.
Once you have selected a plan that suits your needs, you can typically purchase and download the plan directly from the website. Some platforms may offer customization options or additional services, such as working with a designer to make modifications to the plan to better align with your vision for your home.
Conclusion
In conclusion, 1200 Sq Ft 2 Bedroom House Plans are a popular choice for homeowners seeking a balance of comfort and efficiency in their living space. With their versatile layouts, practical features, and optimal use of space, these house plans offer a functional and stylish solution for small families, couples, or individuals looking to create a cozy and welcoming home.
Overall, the key strengths of 1200 Sq Ft 2 Bedroom House Plans lie in their adaptability, efficiency, and thoughtful design, making them a desirable option for a wide range of homeowners. Whether you are looking to downsize, invest in your first home, or simply prioritize functionality and comfort, these house plans offer a well-rounded solution that caters to your needs.
As the housing market continues to evolve and homeowners prioritize practicality and sustainability in their living spaces, 1200 Sq Ft 2 Bedroom House Plans are expected to remain a popular choice for those seeking a balance of comfort and efficiency. With their thoughtful design, functional layout, and customizable features, these house plans offer a timeless and practical solution for modern living.

