1000 Sq Ft 2 Bedroom House Plans: The Perfect Combination of Space and Comfort
Are you looking for the ideal house plan that offers both space and comfort within a 1000 sq ft area? Look no further, as 1000 Sq Ft 2 Bedroom House Plans are designed to provide you with the perfect balance of functionality and style. In this article, we will explore everything you need to know about these house plans, how to download and save them, and why they are the ideal choice for your next home.
Knowledge
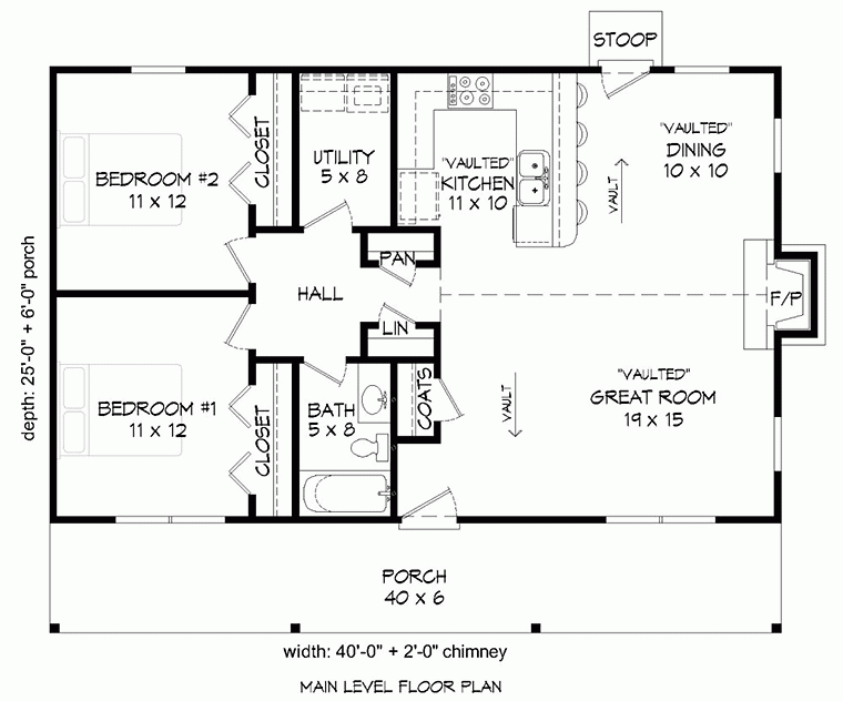
When it comes to 1000 Sq Ft 2 Bedroom House Plans, there are several key features that make them stand out. These house plans are specifically designed to maximize space utilization while ensuring that each room is spacious and comfortable. With two bedrooms, you have the flexibility to create a guest room, home office, or nursery, in addition to the master bedroom.
The open-concept layout of these house plans creates a seamless flow between the living room, dining area, and kitchen, making it perfect for entertaining guests or spending quality time with your family. The inclusion of two bathrooms adds convenience and privacy for you and your guests.
Additionally, many 1000 Sq Ft 2 Bedroom House Plans feature outdoor living spaces such as a patio or deck, allowing you to extend your living space and enjoy the outdoors. Whether you prefer a modern, traditional, or farmhouse style, there are plenty of design options available to suit your personal taste.
How to download and save it
Downloading and saving a 1000 Sq Ft 2 Bedroom House Plan is easy and convenient. You can find a variety of house plan websites that offer a wide selection of designs to choose from. Simply browse through the available options, select the plan that best fits your needs, and proceed to download it to your computer or device.
Once you have downloaded the house plan, you can save it for future reference or share it with your architect or builder. Make sure to review the plan carefully and consult with professionals to make any necessary modifications or customizations to suit your specific requirements.
Conclusion
In conclusion, 1000 Sq Ft 2 Bedroom House Plans are the perfect choice for individuals or small families looking for a comfortable and functional home within a compact space. The combination of two bedrooms, open-concept living areas, and outdoor living spaces make these house plans versatile and practical for modern living.
These house plans are ideal for first-time homebuyers, empty nesters, or anyone looking to downsize without sacrificing style or comfort. With a focus on efficient use of space and thoughtful design elements, 1000 Sq Ft 2 Bedroom House Plans offer the perfect solution for your next home.

