1200 Sf House Plans: The Perfect Solution for Small Home Living
When it comes to finding the ideal house plan for your small home, 1200 Sf House Plans offer the perfect balance of space, functionality, and style. These plans are designed to maximize every square foot, providing homeowners with a comfortable living space that meets their needs without sacrificing on design.
Knowledge
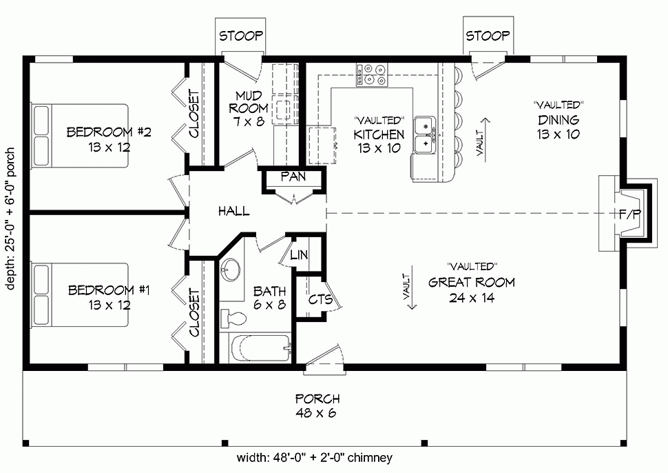
1200 Sf House Plans typically feature two to three bedrooms, one to two bathrooms, and an open-concept living area that combines the kitchen, dining, and living rooms. These plans are perfect for individuals, couples, or small families looking to downsize or build a cozy home without unnecessary extra space.
The layout of 1200 Sf House Plans is carefully thought out to make the most of the available square footage. Bedrooms are often located on one side of the house, providing privacy and separation from the main living areas. The open-concept design of the kitchen, dining, and living rooms creates a spacious and airy feel, making the home feel larger than it actually is.
In addition to the functional layout, 1200 Sf House Plans also offer a variety of architectural styles to suit different tastes. From modern and minimalist to traditional and cozy, there is a plan to match every homeowner’s unique style preferences.
How to download and save it
Conclusion
Overall, 1200 Sf House Plans are the perfect solution for those looking to build a small, yet functional home. With their well-thought-out layouts, stylish designs, and efficient use of space, these plans offer everything homeowners need to create their dream home in 1200 square feet.
Whether you are a first-time homeowner, empty nester, or anyone in between, 1200 Sf House Plans are a great choice for those who value quality over quantity in their living space. Consider exploring these plans to see how they can meet your needs and help you achieve your dream of owning a cozy and comfortable home.

