Housing Floor Plan: Your Guide to the Perfect Layout
When it comes to designing your dream home, the housing floor plan is a crucial element that can make or break the overall look and functionality of the space. A well-thought-out floor plan can maximize square footage, optimize traffic flow, and create a harmonious living environment that suits your lifestyle. In this article, we will delve into the world of housing floor plans, exploring everything from the basics to the intricate details that can make a difference.
Knowledge
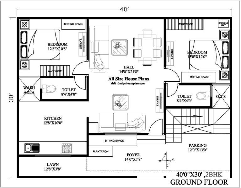
Understanding the basics of a housing floor plan is essential before diving into the intricacies of design. A floor plan is a scaled diagram of a room or building viewed from above, showing the relationships between rooms, spaces, and other physical features. It serves as a blueprint for construction and helps visualize how the final space will look and function.
When creating a housing floor plan, several key factors need to be considered, such as the size and shape of the lot, the number of bedrooms and bathrooms required, the desired layout of the kitchen and living areas, and any special features or amenities. Different architectural styles and design trends can also influence the layout of a floor plan, so it’s essential to stay updated on the latest industry developments.
Whether you prefer an open-concept layout with flowing spaces or a more traditional design with distinct rooms and corridors, the housing floor plan is a customizable canvas that allows you to bring your vision to life. By working with a skilled architect or designer, you can create a floor plan that meets your needs, fits your budget, and reflects your personal style.
How to download and save it
When it comes to accessing housing floor plans, there are several options available. Many architectural firms and home design websites offer pre-designed floor plans that can be purchased and downloaded for a fee. These plans are often customizable, allowing you to make modifications to suit your specific requirements.
If you prefer a more hands-on approach, you can work with an architect or designer to create a custom floor plan from scratch. By collaborating closely with professionals who understand your vision and goals, you can ensure that the final design meets your expectations and exceeds your dreams.
Once you have a finalized floor plan in hand, it’s essential to save it in a safe and accessible format. Consider storing digital copies on a cloud-based platform or external hard drive, and keep printed copies in a secure location for easy reference. Having multiple backups ensures that your housing floor plan is protected and can be accessed whenever needed.
Conclusion
In conclusion, the housing floor plan is a crucial element in the design and construction of a home. By understanding the basics of floor plan design, exploring different layout options, and working with professionals to create a customized plan, you can ensure that your dream home becomes a reality. The key strengths of a well-designed floor plan include maximizing space, optimizing functionality, and enhancing the overall aesthetic appeal of the space.
For homeowners, architects, designers, and anyone interested in the world of home design, the housing floor plan is a valuable tool that can transform ideas into tangible results. By staying informed about the latest trends, technologies, and innovations in floor plan design, you can make informed decisions that lead to a successful and satisfying home-building experience.

