2 Bedroom One Bath House Plans: The Perfect Solution for Cozy Living
Are you looking for the ideal house plan that combines functionality, efficiency, and affordability? Look no further than 2 Bedroom One Bath House Plans. These plans offer a compact yet comfortable living space that is perfect for individuals, couples, or small families. In this article, we will delve into the details of 2 Bedroom One Bath House Plans, covering everything you need to know about them, how to download and save them, and why they are an excellent choice for your next home.
Knowledge
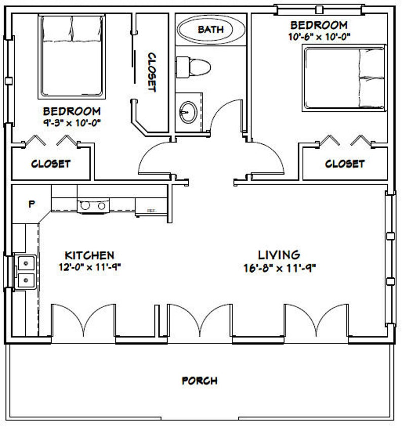
2 Bedroom One Bath House Plans are designed to maximize space and provide all the essential amenities in a compact layout. These plans typically feature two bedrooms, a shared bathroom, a living room, a kitchen, and sometimes a small dining area. Despite their modest size, 2 Bedroom One Bath House Plans are versatile and can be customized to suit your specific needs and preferences.
One of the key advantages of 2 Bedroom One Bath House Plans is their affordability. These plans are cost-effective to build and maintain, making them an attractive option for budget-conscious individuals. Additionally, the compact size of these houses means lower utility bills and less time spent on cleaning and maintenance.
Another benefit of 2 Bedroom One Bath House Plans is their efficiency. With a well-designed layout, these houses make the most of every square foot, providing ample storage space and comfortable living areas. The two bedrooms offer flexibility for use as a guest room, home office, or hobby space, depending on your needs.
When choosing a 2 Bedroom One Bath House Plan, consider factors such as the overall layout, flow of the space, natural light, and outdoor access. Look for plans that maximize functionality and provide a comfortable living environment for you and your family.
Overall, 2 Bedroom One Bath House Plans are a smart choice for those seeking a cozy and efficient living space that meets their needs without breaking the bank.
How to download and save it
Conclusion
2 Bedroom One Bath House Plans offer a practical and affordable housing solution for individuals, couples, or small families. With their efficient layout and cost-effective design, these plans provide all the essential amenities in a compact space. They are ideal for those looking to downsize, simplify their lifestyle, or build a starter home.
In conclusion, 2 Bedroom One Bath House Plans are a versatile and budget-friendly option for anyone in search of a cozy living space. Whether you are a first-time homebuyer, empty nester, or minimalist, these plans offer the perfect balance of comfort and functionality.
Consider choosing a 2 Bedroom One Bath House Plan for your next home project and enjoy the benefits of streamlined living in a well-designed space.

