Floor Plan Two Storey House: The Perfect Balance of Space and Style
When it comes to choosing a home design, the floor plan of a two-storey house offers a perfect balance of space and style. With a well-designed layout that maximizes living areas while providing privacy and functionality, a two-storey house floor plan is a popular choice for many homeowners. In this article, we will explore the appeal of a two-storey house floor plan and cover everything you need to know about it.
Knowledge
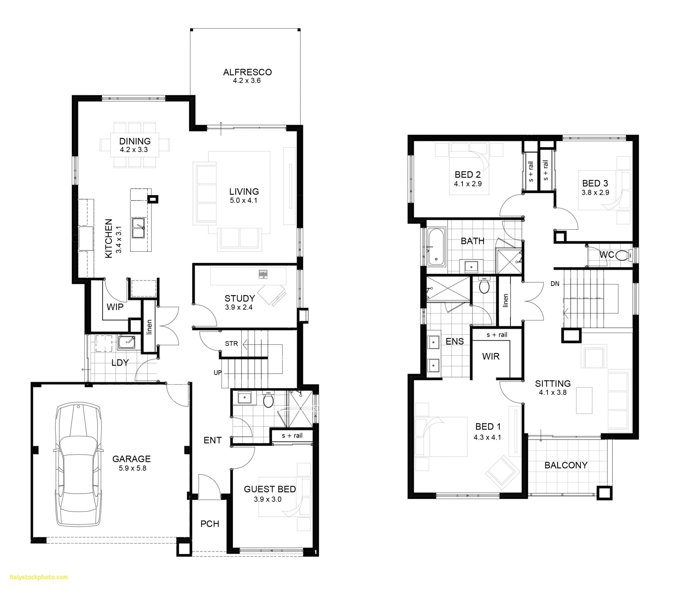
A two-storey house floor plan typically features the living areas on the ground floor and the bedrooms on the upper floor. This layout allows for a clear separation between public and private spaces, providing a sense of coziness and comfort for the residents. The ground floor usually includes a spacious living room, dining area, kitchen, and sometimes a guest bedroom or office. Upstairs, you will find the bedrooms, including the master bedroom with an ensuite bathroom and walk-in closet.
One of the key advantages of a two-storey house floor plan is the efficient use of space. By stacking the living areas vertically, you can maximize the footprint of the house while still having a generous outdoor area. This layout is ideal for families with children, as it allows for better supervision and separation of living and sleeping areas.
Another benefit of a two-storey house floor plan is the flexibility it offers in terms of design. With two levels to work with, you can create distinct zones for different activities, such as a formal living room on the ground floor and a cozy family room on the upper floor. This versatility allows you to customize the layout to suit your lifestyle and preferences.
In terms of aesthetics, a two-storey house floor plan offers a grand and imposing presence. The verticality of the design gives the house a sense of scale and prominence, making it a standout in any neighborhood. With the right architectural details and materials, you can create a visually appealing facade that reflects your personal style and taste.
When it comes to functionality, a two-storey house floor plan excels in providing ample living space without sacrificing privacy. The separation of living and sleeping areas allows for quiet and peaceful nights, while the open-plan layout on the ground floor encourages socializing and interaction among family members and guests.
How to download and save it
Conclusion
In conclusion, a floor plan of a two-storey house offers a perfect balance of space and style for homeowners looking for a versatile and functional layout. With its efficient use of space, flexibility in design, and imposing presence, a two-storey house floor plan is a popular choice for families and individuals alike. Whether you prefer a traditional or modern design, a two-storey house floor plan can provide the perfect backdrop for your dream home.
Overall, the key strengths of a two-storey house floor plan lie in its ability to maximize living areas, provide privacy and functionality, and create a visually appealing facade. The target audience for this type of floor plan includes families, professionals, and anyone looking for a spacious and well-designed home.
As the real estate market continues to evolve, the demand for two-storey house floor plans remains strong due to their timeless appeal and practical layout. Whether you are building a new home or renovating an existing one, a two-storey house floor plan is a versatile and stylish choice that will stand the test of time.

