3 Bedroom 2 Bathroom House Plans: The Perfect Blend of Comfort and Functionality
Are you in search of the ideal 3 bedroom 2 bathroom house plans that strike the perfect balance between comfort and functionality? Look no further! In this comprehensive guide, we will delve into the world of 3 bedroom 2 bathroom house plans, exploring their appeal, key features, and how you can download and save them for your future dream home.
Knowledge
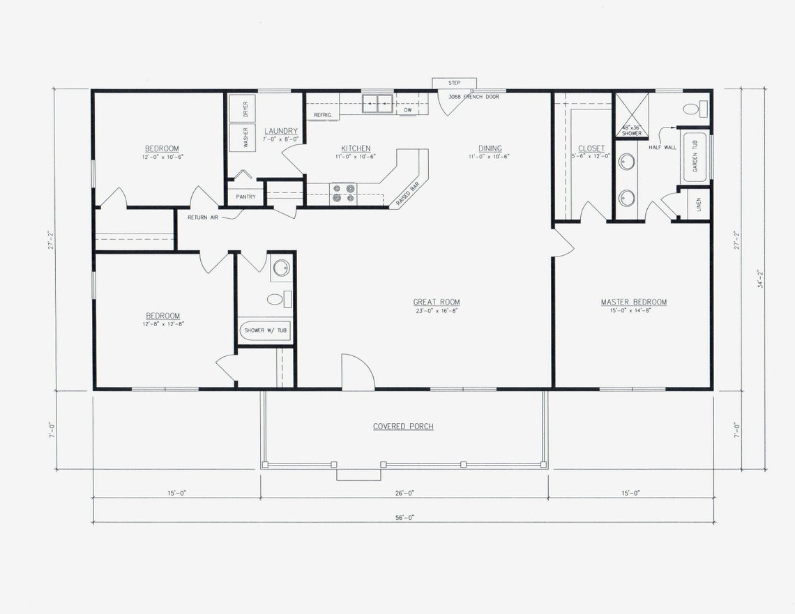
When it comes to house plans, the 3 bedroom 2 bathroom layout is a popular choice for many homeowners. This versatile floor plan offers the perfect combination of space and functionality, making it ideal for families, couples, or individuals looking for a comfortable and efficient living space.
One of the key advantages of a 3 bedroom 2 bathroom house plan is its flexibility. With three bedrooms, you have the option to use the extra rooms as a home office, guest room, playroom, or whatever suits your needs. The two bathrooms provide added convenience, especially during busy mornings or when entertaining guests.
These house plans typically feature an open-concept living area, where the kitchen, dining, and living spaces flow seamlessly together, creating a sense of spaciousness. The layout is designed to maximize natural light and ventilation, creating a bright and airy atmosphere throughout the home.
Furthermore, 3 bedroom 2 bathroom house plans come in a variety of architectural styles, from traditional to modern, allowing you to choose a design that reflects your personal taste and lifestyle. Whether you prefer a cozy cottage, a sleek contemporary home, or a classic farmhouse, there is a 3 bedroom 2 bathroom house plan to suit every preference.
Overall, the appeal of 3 bedroom 2 bathroom house plans lies in their practicality, versatility, and comfort. They offer a harmonious balance between private spaces and communal areas, making them an ideal choice for families of all sizes.
How to download and save it
Conclusion
3 Bedroom 2 Bathroom House Plans are the epitome of comfort and functionality, catering to the needs of modern homeowners looking for a versatile and well-designed living space. With their flexible layout, ample amenities, and stylish designs, these house plans are sure to appeal to a wide range of individuals and families.
In conclusion, if you are in search of a practical and stylish home design that offers the perfect blend of comfort and functionality, look no further than 3 bedroom 2 bathroom house plans. Whether you are a first-time homebuyer, a growing family, or empty nesters looking to downsize, these house plans have something to offer everyone.
By choosing a 3 bedroom 2 bathroom house plan, you are not just investing in a house, but in a lifestyle. These plans are designed to enhance your quality of life, providing you with a comfortable and functional living space that you can truly call home. So why wait? Explore the world of 3 bedroom 2 bathroom house plans today and take the first step towards building your dream home.

