2 Bedroom 1 Bath House Plans: The Perfect Combination of Size and Functionality
When it comes to choosing a house plan, finding the right balance between size and functionality is crucial. 2 bedroom 1 bath house plans offer the perfect combination of space and practicality for a variety of homeowners. Whether you’re a first-time buyer looking for an affordable option, a small family in need of a cozy space, or a retiree downsizing to a more manageable home, these plans have something to offer for everyone.
Knowledge
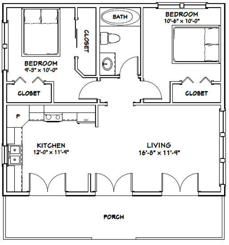
2 bedroom 1 bath house plans typically range from around 900 to 1,200 square feet in size, making them ideal for small families, couples, or individuals looking for a compact yet comfortable living space. These plans often feature an open-concept layout, maximizing the use of space and creating a seamless flow between rooms. The two bedrooms provide enough space for a master bedroom and a guest room, or perhaps a home office or hobby room.
One of the key advantages of 2 bedroom 1 bath house plans is their affordability. With fewer rooms and less square footage than larger homes, these plans are often more budget-friendly in terms of construction costs, maintenance, and utilities. This makes them an attractive option for first-time homebuyers, young couples, or individuals looking to downsize without sacrificing comfort or quality of life.
In addition to their affordability, 2 bedroom 1 bath house plans are also versatile in terms of design and style. Whether you prefer a traditional ranch-style home, a modern minimalist design, or a cozy cottage aesthetic, there are countless options available to suit your taste and lifestyle. From cozy bungalows to sleek contemporary designs, these plans can be customized to reflect your personal preferences and needs.
When it comes to functionality, 2 bedroom 1 bath house plans are designed to maximize space and efficiency without sacrificing comfort or livability. The single bathroom is strategically located to serve both bedrooms and common areas, making it convenient for residents and guests alike. The open layout of the living spaces creates a sense of spaciousness and flexibility, allowing for easy navigation and furniture arrangement.
How to download and save it
When you’re ready to explore 2 bedroom 1 bath house plans for your next home, there are several ways to access and save them for future reference. Many reputable home design websites offer a wide selection of house plans, including 2 bedroom 1 bath options, that you can browse and download for a fee. These websites often provide detailed floor plans, 3D renderings, and additional information to help you visualize your future home.
You can also work with a professional architect or designer to create a custom 2 bedroom 1 bath house plan that meets your specific needs and preferences. By collaborating with a professional, you can ensure that your new home reflects your unique style, functional requirements, and budget constraints. Whether you choose a pre-designed plan or opt for a custom design, investing in a well-thought-out house plan is essential for a successful and satisfying home-building experience.
Conclusion
In conclusion, 2 bedroom 1 bath house plans offer a perfect balance of size, functionality, and affordability for a variety of homeowners. Whether you’re looking for a cozy starter home, a compact family residence, or a retirement retreat, these plans provide the ideal solution for your housing needs. With their versatile design options, efficient layouts, and budget-friendly construction costs, 2 bedroom 1 bath house plans are a popular choice for those seeking a comfortable and practical living space.
Overall, the key strengths of 2 bedroom 1 bath house plans lie in their ability to maximize space, functionality, and style in a compact and cost-effective package. Their appeal extends to a wide range of homeowners, including first-time buyers, downsizers, and small families, who value efficiency, comfort, and affordability in their living spaces. By choosing a 2 bedroom 1 bath house plan, you can enjoy the benefits of a well-designed home that meets your needs and enhances your quality of life.
As the housing market continues to evolve and adapt to changing needs and preferences, 2 bedroom 1 bath house plans remain a popular and practical choice for many homeowners. With their timeless appeal, functional layouts, and budget-friendly options, these plans offer a versatile and efficient solution for those seeking a smaller yet comfortable living space. Whether you’re starting a new chapter in life, simplifying your lifestyle, or looking for a cozy retreat, 2 bedroom 1 bath house plans provide the perfect foundation for your future home.

