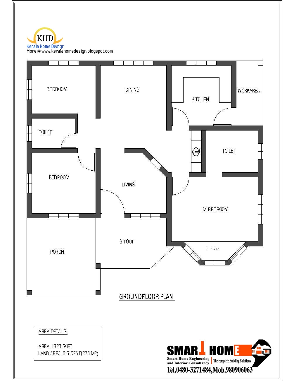
1 Floor House Plans: The Ultimate Guide
Are you considering building a one-story home? Look no further than 1 Floor House Plans! These plans are not only practical but also offer a seamless flow and easy access to all areas of the house. In this comprehensive guide, we will explore everything you need to know about 1 Floor House Plans, including how to download and save them for your future dream home.
Knowledge
1 Floor House Plans are designed for individuals and families looking for a single-story living space. These plans typically feature all the necessary rooms such as bedrooms, bathrooms, kitchen, living room, and dining room on one level, making them ideal for individuals with mobility issues or those who prefer not to climb stairs. Additionally, one-story homes are more energy-efficient and easier to maintain compared to multi-story homes.
When choosing a 1 Floor House Plan, it’s essential to consider your lifestyle and future needs. You can opt for an open floor plan that offers a spacious and airy feel or a more compartmentalized layout for added privacy. The exterior style of the house can range from modern and contemporary to traditional and farmhouse, allowing you to customize the look of your home to suit your preferences.
One of the key advantages of 1 Floor House Plans is the flexibility they offer in terms of customization. Whether you’re looking for a small and cozy home or a spacious and luxurious one, there are numerous options available to cater to your specific requirements. From the number of bedrooms and bathrooms to the size of the kitchen and living areas, you can tailor the plan to create your dream home.
Another crucial factor to consider when selecting a 1 Floor House Plan is the orientation of the house on your lot. Maximizing natural light and ventilation, as well as ensuring privacy from neighboring properties, are important considerations that can influence the overall design of your home. Additionally, incorporating outdoor living spaces such as patios, decks, or porches can enhance the functionality and aesthetics of your one-story home.
How to download and save it
Downloading and saving a 1 Floor House Plan is a simple and straightforward process. There are numerous websites and online platforms that offer a wide selection of pre-designed plans for you to choose from. You can browse through different categories such as size, style, and number of bedrooms to find the perfect plan that suits your needs.
Once you have selected a 1 Floor House Plan, you can download the plan in various file formats such as PDF, CAD, or JPEG. This allows you to view the plan in detail, make any necessary modifications, and share it with your architect or builder. Saving the plan to your computer or cloud storage ensures that you have easy access to it whenever you need to refer back to it during the construction process.
Conclusion
In conclusion, 1 Floor House Plans are an excellent choice for individuals and families looking for a practical and functional living space. With their seamless flow and easy access, one-story homes offer convenience and comfort for everyday living. Whether you’re a first-time homebuyer or looking to downsize, 1 Floor House Plans provide a versatile and customizable option for your future dream home.
Overall, the key strengths of 1 Floor House Plans lie in their accessibility, energy efficiency, and customization options. They appeal to a wide range of individuals, including seniors, young families, and individuals with mobility issues. By choosing a one-story home, you can enjoy the convenience of single-level living without compromising on style or comfort.
As the real estate market continues to evolve, 1 Floor House Plans remain a popular choice for homeowners looking for a practical and modern living solution. With their timeless appeal and functional design, one-story homes offer a versatile and sustainable option for those seeking a comfortable and efficient living space. Consider exploring 1 Floor House Plans for your next home project and experience the benefits of single-story living firsthand.

