Two Storey House Plan: The Ultimate Guide to Modern Living
Are you dreaming of a spacious and stylish home that maximizes living space without sacrificing comfort? Look no further than the Two Storey House Plan. This innovative design offers the perfect combination of functionality and aesthetics, making it a popular choice for modern homeowners. In this article, we will explore everything you need to know about the Two Storey House Plan, including its key features, benefits, and how to download and save it for your future dream home.
Knowledge
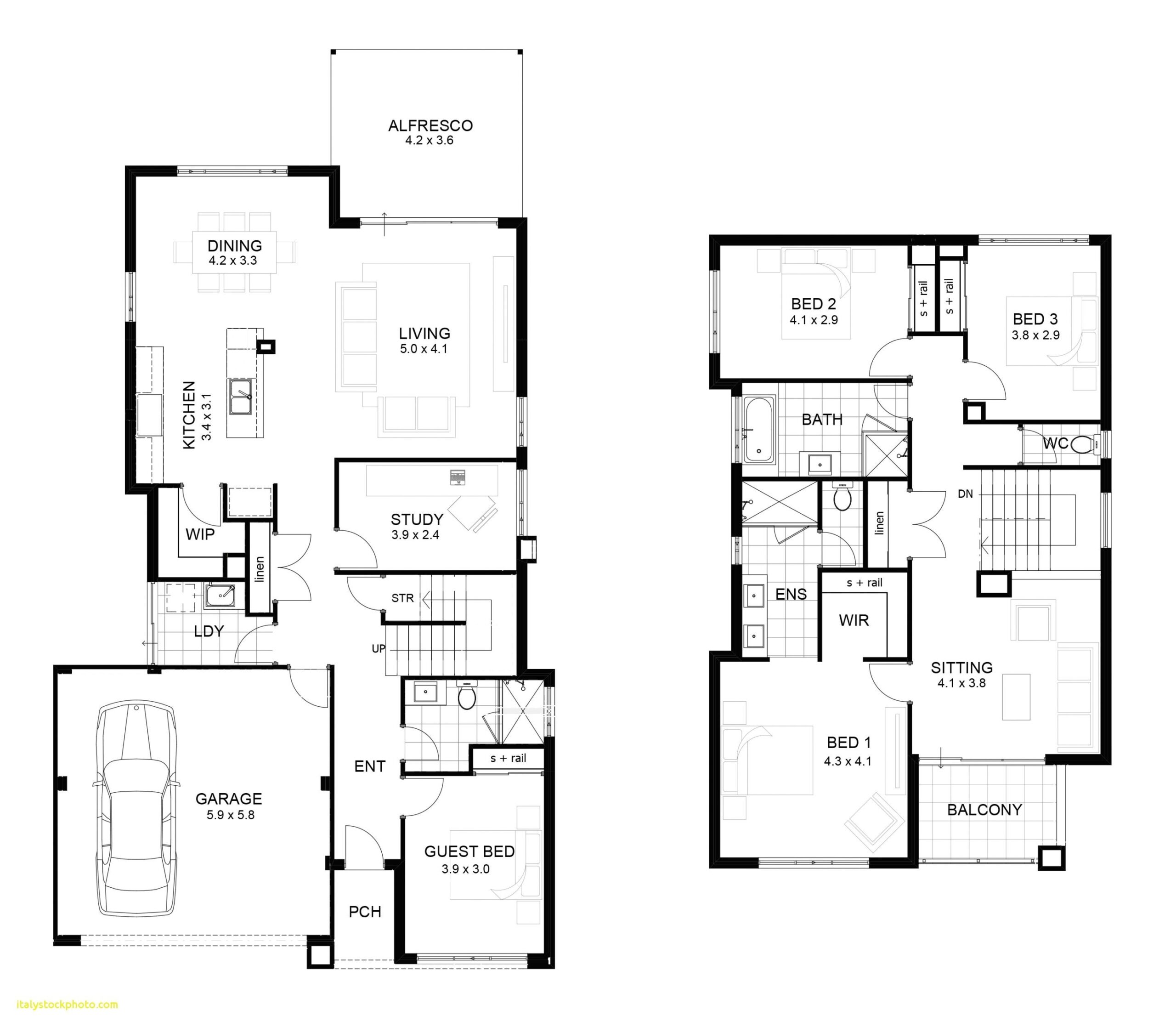
The Two Storey House Plan is a versatile layout that offers ample space for both living and entertaining. With two floors of living space, this design allows for better separation of public and private areas, making it ideal for families or individuals who value privacy. The ground floor typically features common areas such as the living room, dining room, and kitchen, while the upper floor houses the bedrooms and bathrooms.
One of the key advantages of the Two Storey House Plan is its efficient use of space. By stacking the living areas vertically, this design maximizes the use of the lot size, making it a great option for urban or suburban settings where land may be limited. Additionally, the two-storey layout offers excellent natural light and ventilation, creating a bright and airy atmosphere throughout the home.
When it comes to style, the Two Storey House Plan offers endless possibilities for customization. From modern minimalist designs to traditional and rustic aesthetics, this versatile layout can be tailored to suit your personal taste and lifestyle. Whether you prefer open-concept living or defined rooms, the Two Storey House Plan can be adapted to meet your needs.
Another benefit of the Two Storey House Plan is its potential for expansion. If additional space is needed in the future, the design can easily accommodate an extra room or extension without compromising the overall layout. This flexibility makes the Two Storey House Plan a smart investment for homeowners looking to future-proof their living space.
How to download and save it
Downloading and saving a Two Storey House Plan is easy and convenient. There are many online platforms and websites that offer a wide selection of pre-designed Two Storey House Plans for purchase or download. Simply browse through the available options, choose a plan that suits your needs and budget, and follow the instructions to download the files.
Before downloading a Two Storey House Plan, be sure to review the floor plan, elevations, and other details to ensure that it meets your requirements. You may also want to consult with a professional architect or designer to customize the plan to suit your specific needs and preferences.
Conclusion
In conclusion, the Two Storey House Plan is a versatile and stylish option for modern living. Its efficient use of space, customizable design, and potential for expansion make it a popular choice for homeowners looking to maximize their living space without compromising on comfort and style. Whether you’re building a new home or renovating an existing property, the Two Storey House Plan offers endless possibilities for creating the perfect living environment.
Overall, the Two Storey House Plan is best suited for families or individuals who value privacy, space, and style. Its modern design and flexible layout make it a practical and appealing choice for those looking to create a comfortable and functional home. With the right planning and customization, the Two Storey House Plan can be transformed into the home of your dreams.

