Discovering the Ideal 40X30 House Plan: Your Ultimate Guide
Are you in the market for a 40X30 house plan that perfectly fits your needs and preferences? Look no further! In this comprehensive guide, we will delve into the world of 40X30 house plans, exploring their appeal, key features, and how to download and save the perfect plan for your dream home.
Knowledge
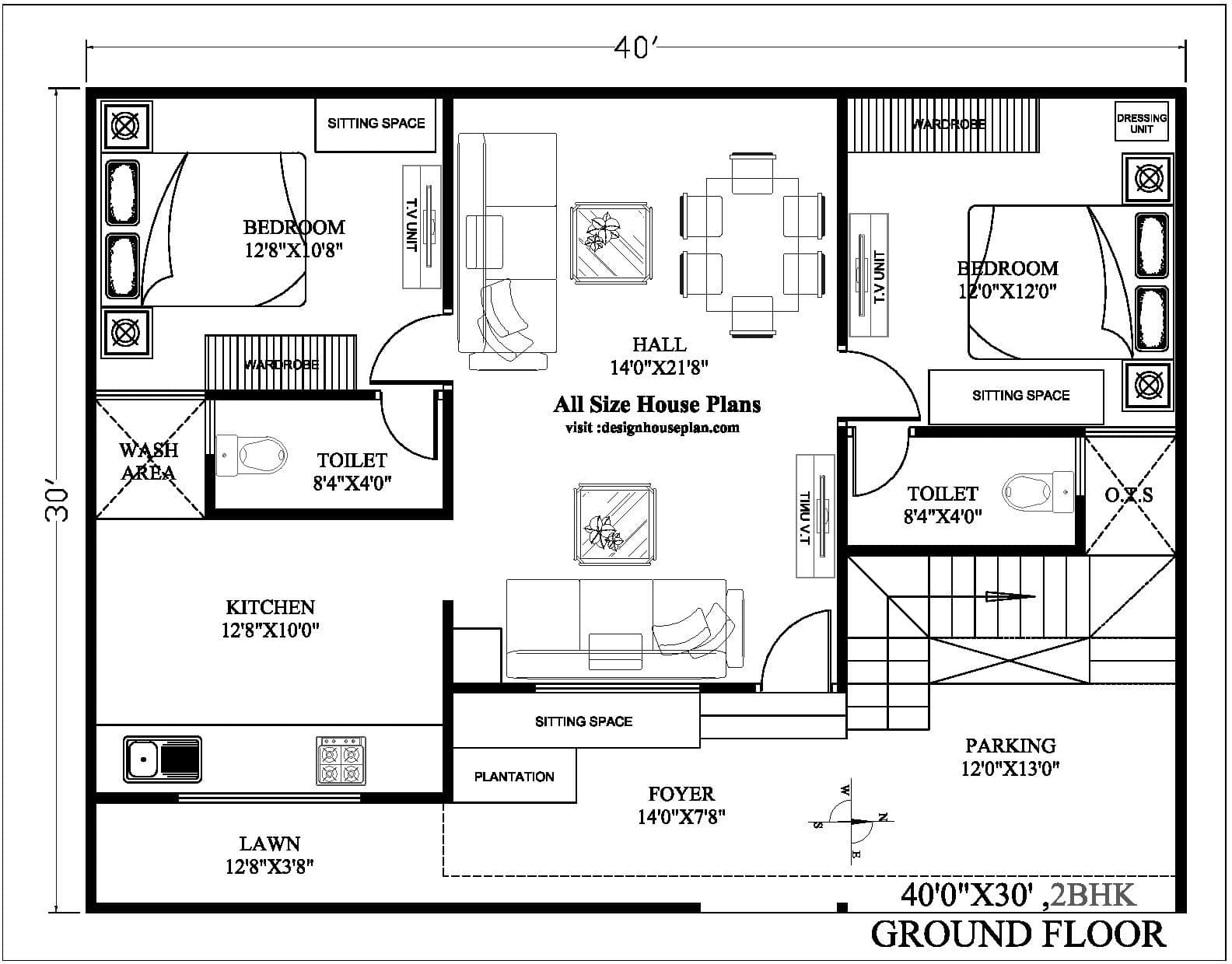
When it comes to house plans, the 40X30 layout is a popular choice for many homeowners. This size offers a spacious living area while still being manageable in terms of maintenance and construction costs. Whether you are looking to build a cozy family home, a stylish bachelor pad, or a functional retirement retreat, the 40X30 house plan provides ample space and flexibility to suit your lifestyle.
One of the key advantages of a 40X30 house plan is its versatility. With this size, you can easily accommodate multiple bedrooms, bathrooms, a kitchen, living room, dining area, and even a home office or gym. The open floor plan design allows for seamless flow between rooms, creating a sense of spaciousness and comfort.
Furthermore, the 40X30 house plan is ideal for both urban and rural settings. Whether you prefer a modern, minimalist design or a traditional, cozy aesthetic, this size can be customized to reflect your personal style and preferences. From sleek architectural lines to charming exterior details, the possibilities are endless when it comes to designing your dream home.
When selecting a 40X30 house plan, it is essential to consider factors such as natural light, ventilation, privacy, and energy efficiency. By working with a reputable architect or designer, you can create a custom plan that maximizes the use of space while ensuring comfort and functionality are prioritized.
How to download and save it
Downloading and saving a 40X30 house plan is a straightforward process. There are numerous websites and online platforms that offer a wide range of house plans, including the popular 40X30 layout. Simply browse through the available options, filter your search based on your preferences, and select the plan that best suits your needs.
Once you have found the perfect 40X30 house plan, you can download it in various file formats, such as PDF, CAD, or JPEG. Make sure to save the file to your computer or mobile device for easy access during the construction process. Additionally, consider consulting with a professional architect or builder to review the plan and make any necessary modifications to ensure it meets local building codes and regulations.
Conclusion
In conclusion, the 40X30 house plan is an excellent choice for homeowners looking to build a spacious, functional, and stylish home. Its versatility, flexibility, and customization options make it a popular option for a wide range of individuals and families. Whether you are a first-time homebuyer, a growing family, or a retiree looking to downsize, the 40X30 house plan offers the perfect balance of comfort and convenience.
Ultimately, the key strengths of the 40X30 house plan lie in its adaptability to various lifestyles and design preferences. Its spacious layout, efficient use of space, and potential for customization make it a versatile and practical choice for anyone in search of their dream home.
As you embark on your journey to find the perfect house plan, remember to consider your unique needs, budget, and vision for your future home. By choosing a 40X30 layout, you are investing in a timeless and functional design that will provide you with years of comfort and enjoyment. So why wait? Start exploring 40X30 house plans today and turn your dream home into a reality!

