4000 Sq Feet House Plans: The Ultimate Guide to Spacious Living
Looking for the perfect house plan that offers ample space for your family to live comfortably? 4000 Sq Feet House Plans might just be the ideal solution for you. In this comprehensive guide, we will explore everything you need to know about these plans, how to download and save them, and why they are perfect for anyone looking for a spacious home.
Knowledge
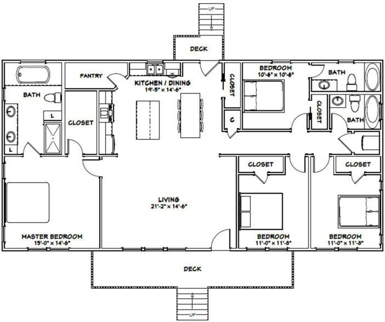
When it comes to 4000 Sq Feet House Plans, the first thing that comes to mind is space. These plans are designed to offer generous living areas, multiple bedrooms, bathrooms, and even additional rooms like a home office, gym, or entertainment area. With 4000 square feet of space, you have the flexibility to customize the layout to suit your family’s needs and lifestyle.
One of the key advantages of choosing a 4000 Sq Feet House Plan is the ability to accommodate a large family or have plenty of room for guests. The open floor plan design allows for easy flow between rooms and creates a sense of spaciousness. Whether you enjoy hosting gatherings or simply desire a home with room to grow, a 4000 Sq Feet House Plan offers the perfect solution.
In terms of architectural styles, 4000 Sq Feet House Plans come in a variety of designs to suit different tastes. Whether you prefer a traditional, modern, farmhouse, or Mediterranean style, you can find a plan that matches your aesthetic preferences. From single-story ranch homes to two-story mansions, there are endless possibilities to choose from.
Furthermore, 4000 Sq Feet House Plans often include special features such as gourmet kitchens, luxurious master suites, outdoor living spaces, and bonus rooms. These extra amenities enhance the overall appeal of the home and provide added comfort and convenience for homeowners. With a 4000 Sq Feet House Plan, you can create the home of your dreams with all the features you desire.
How to download and save it
Downloading a 4000 Sq Feet House Plan is easy and convenient. Simply visit a reputable house plan website or work with a professional architect to customize a plan to meet your specific needs. Many websites offer a wide selection of pre-designed 4000 Sq Feet House Plans that you can purchase and download instantly. Alternatively, you can work with an architect to create a custom plan tailored to your preferences.
Conclusion
In conclusion, 4000 Sq Feet House Plans are the perfect choice for anyone looking for a spacious and luxurious home. With ample living space, versatile floor plans, and a range of design options, these plans offer endless possibilities for customization. Whether you have a large family, love to entertain, or simply desire a home with room to grow, a 4000 Sq Feet House Plan is the ideal solution.
Overall, the key strengths of 4000 Sq Feet House Plans lie in their flexibility, spaciousness, and customization options. These plans are perfect for families of all sizes and provide the comfort and luxury that homeowners desire. If you are in the market for a new home and want to experience the ultimate in spacious living, consider choosing a 4000 Sq Feet House Plan.
When it comes to the market outlook for 4000 Sq Feet House Plans, the demand for spacious homes continues to grow as homeowners seek more room for their families and activities. With the versatility and customization options offered by these plans, they are sure to remain a popular choice for those looking for a comfortable and stylish living space. Invest in a 4000 Sq Feet House Plan today and experience the joy of living in a home that truly reflects your lifestyle and personality.

