4 Bedroom 3 Bathroom House Plans: The Ultimate Guide
Are you in the market for a spacious and comfortable home that meets all your family’s needs? Look no further than 4 Bedroom 3 Bathroom House Plans. With ample living space and the perfect balance of privacy and convenience, these house plans are designed to cater to your every need. In this comprehensive guide, we will delve into everything you need to know about these versatile and highly sought-after house plans.
Knowledge
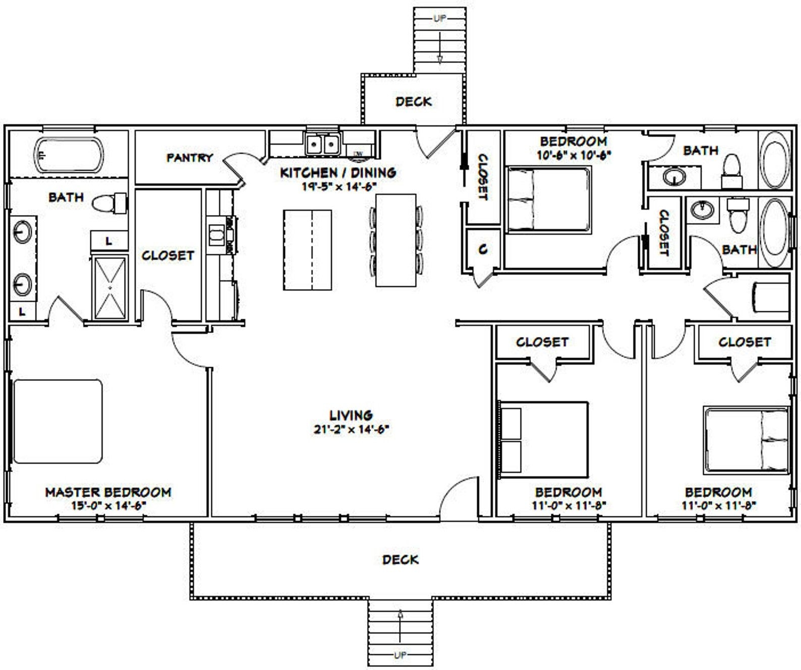
4 Bedroom 3 Bathroom House Plans are the ideal choice for growing families or those who love to entertain guests. With four bedrooms, there is plenty of room for everyone to have their own space, whether it be for sleeping, studying, or relaxing. The three bathrooms ensure that there is never a queue in the morning rush, making your daily routines more efficient and stress-free.
These house plans often feature a master bedroom with an en-suite bathroom, providing a luxurious retreat for the homeowners. The remaining bedrooms are spacious and well-appointed, perfect for children, guests, or even a home office.
The open-plan living areas are designed for modern living, with seamless flow between the kitchen, dining, and living spaces. This layout is perfect for gatherings and socializing, allowing you to interact with your family and guests while preparing meals or relaxing in the living room.
4 Bedroom 3 Bathroom House Plans come in a variety of styles and designs to suit your preferences. Whether you prefer a traditional look or a more contemporary aesthetic, there is a house plan to match your taste. From single-story ranch-style homes to two-story colonial designs, the options are endless.
How to download and save it
Conclusion
In conclusion, 4 Bedroom 3 Bathroom House Plans are the perfect choice for families looking for space, comfort, and convenience. With ample room for everyone and a layout that promotes togetherness, these house plans are sure to meet your needs and exceed your expectations.
These house plans are ideal for families looking to create lasting memories in a home that caters to their every need. Whether you have young children, teenagers, or elderly relatives living with you, the versatility of 4 Bedroom 3 Bathroom House Plans makes them a popular choice for a wide range of homeowners.
Overall, investing in a 4 Bedroom 3 Bathroom House Plan is a decision that will benefit you and your family for years to come. The spacious layout, convenient amenities, and timeless design make these house plans a valuable asset that will enhance your quality of life and provide a comfortable living environment for all.

