Explore The Best 4 Bedroom 3 Bath House Plans for Your Dream Home
Are you in the market for the perfect 4 Bedroom 3 Bath house plans for your dream home? Look no further! In this comprehensive guide, we will delve into the world of spacious and functional house plans that cater to your needs and preferences. Whether you are a growing family, a couple looking for extra space, or someone who loves hosting guests, these house plans are sure to impress.
Knowledge
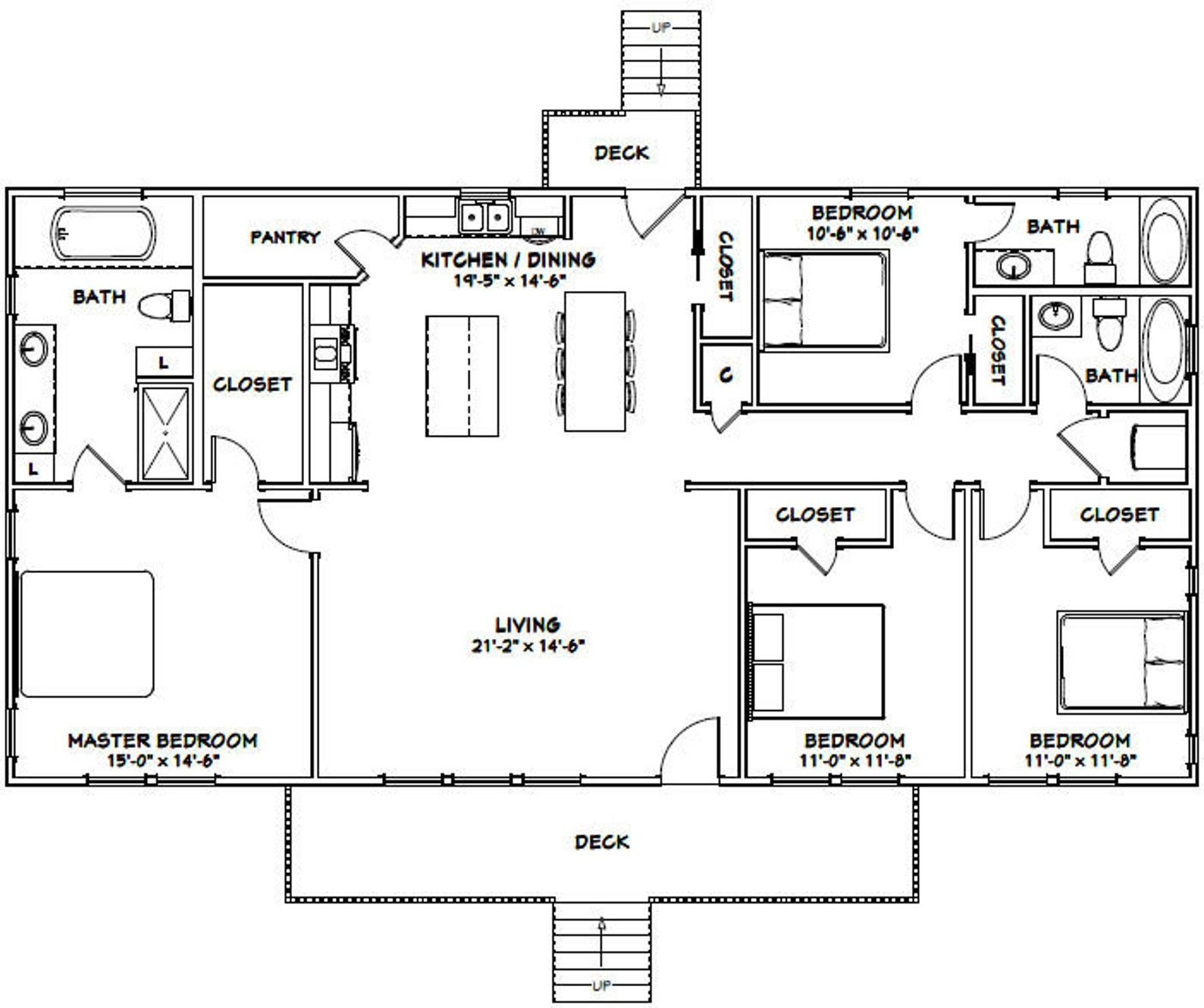
When it comes to 4 Bedroom 3 Bath house plans, there are various factors to consider to ensure that the design meets your requirements. These house plans are popular for their versatility and functionality, offering ample space for families of all sizes. With four bedrooms, you have the flexibility to convert one into a home office, playroom, or guest room, depending on your needs.
The three bathrooms included in these house plans provide convenience and privacy for residents and guests. Having multiple bathrooms reduces morning congestion and allows for a more comfortable living experience. Additionally, the layout and design of these bathrooms can vary, offering options such as en-suite bathrooms, shared family bathrooms, and powder rooms for guests.
One of the key features of 4 Bedroom 3 Bath house plans is the open-concept living areas that promote connectivity and flow between spaces. The kitchen, dining area, and living room are often integrated to create a cohesive and inviting environment for everyday living and entertaining. Large windows and natural light enhance the overall ambiance of the house, making it bright and welcoming.
Furthermore, these house plans typically include practical elements such as storage solutions, walk-in closets, and a dedicated laundry room. These features add convenience and organization to your daily routine, ensuring that your home remains clutter-free and functional.
How to download and save it
Downloading and saving 4 Bedroom 3 Bath house plans is a simple and straightforward process. Many websites and online platforms offer a wide selection of house plans that you can browse and choose from. Once you find a plan that suits your preferences, you can typically download it as a PDF file for easy access and reference.
It is essential to review the details and specifications of the house plan carefully before finalizing your decision. Consider factors such as the total square footage, room dimensions, layout, and architectural style to ensure that the plan aligns with your vision for your dream home. If needed, you can consult with a professional architect or designer to customize the plan to better suit your needs.
Conclusion
In conclusion, 4 Bedroom 3 Bath house plans are an excellent choice for individuals and families seeking a spacious and functional living space. With ample bedrooms, bathrooms, and open-concept living areas, these house plans offer versatility and comfort for everyday living.
These house plans are ideal for growing families, homeowners who love to entertain, or anyone looking for extra space and convenience in their home. The flexibility and practicality of 4 Bedroom 3 Bath house plans make them a popular choice among homeowners who value comfort, style, and functionality in their living space.
As you explore different house plans and design options, keep in mind your unique preferences, lifestyle, and budget to find the perfect plan for your dream home. With the right 4 Bedroom 3 Bath house plan, you can create a beautiful and functional living space that meets all your needs and exceeds your expectations.

