3 Bedroom House Plans One Story: Your Ideal Home Design Solution
Are you in search of the perfect 3 bedroom house plan that offers both space and comfort, all on one convenient level? Look no further! In this article, we will explore the appeal and benefits of 3 bedroom house plans designed for one-story living. From the layout to the functionality, we will cover everything you need to know to make an informed decision for your dream home.
Knowledge
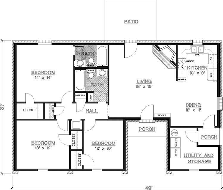
When it comes to 3 bedroom house plans one story, there are several key factors to consider. These designs are popular among homeowners for their convenience, accessibility, and overall functionality. With all living spaces on a single level, these plans offer ease of movement for individuals of all ages and abilities.
The layout of a 3 bedroom house plan one story typically includes a master suite with attached bathroom, two additional bedrooms, a shared bathroom, a spacious living area, a kitchen, and a dining room. Some designs may also feature a bonus room or office space, providing flexibility for various needs.
One of the main advantages of a one-story house plan is the seamless flow between rooms, creating an open and inviting atmosphere. These designs are ideal for families with young children or individuals looking to downsize without sacrificing comfort.
Additionally, 3 bedroom house plans one story can be customized to suit your specific preferences and lifestyle. Whether you prefer a traditional ranch-style home or a modern layout with open concept living spaces, there are endless possibilities to create the perfect design for your needs.
How to download and save it
Conclusion
In conclusion, 3 bedroom house plans one story offer a practical and stylish solution for modern living. With their convenient layout and functional design, these plans are perfect for individuals and families looking for a comfortable and accessible home. The target audience for these designs includes homeowners who value convenience, flexibility, and timeless appeal in their living space.
Ultimately, choosing a 3 bedroom house plan one story is a smart investment in your future. With the right design and layout, you can enjoy the benefits of single-level living while maximizing space and comfort. So why settle for anything less? Explore the world of 3 bedroom house plans one story today and discover the perfect design for your dream home.

