Explore the Best 2 Bed 2 Bath House Plans: Your Ultimate Guide
Are you in the market for a new home and looking for the perfect 2 bed 2 bath house plan? Look no further! In this comprehensive guide, we will delve into everything you need to know about 2 bed 2 bath house plans, from design options to the advantages they offer. Let’s get started!
Knowledge
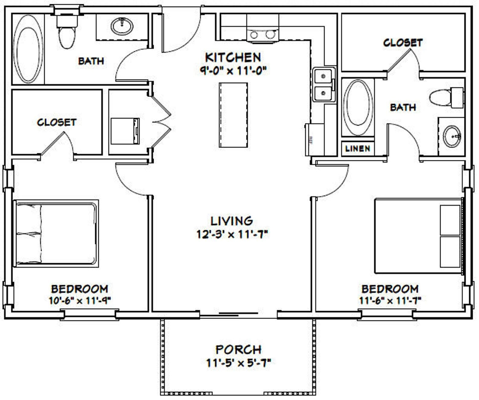
When it comes to 2 bed 2 bath house plans, there are plenty of options to choose from. These plans typically feature two bedrooms and two bathrooms, making them ideal for small families, couples, or individuals looking for a bit of extra space. One of the key advantages of a 2 bed 2 bath house plan is the flexibility it offers. You can use the second bedroom as a guest room, home office, or even a hobby space, while the two bathrooms provide added convenience for residents and guests.
Additionally, 2 bed 2 bath house plans often come in a variety of styles and layouts to suit different preferences. Whether you prefer a traditional, modern, or farmhouse design, there is a 2 bed 2 bath house plan out there for you. From open-concept living spaces to cozy nooks, these plans offer a perfect balance of comfort and functionality.
Another important aspect to consider when choosing a 2 bed 2 bath house plan is the size of the home. These plans can range from compact designs suitable for urban living to spacious layouts perfect for suburban or rural settings. With the right 2 bed 2 bath house plan, you can find a home that fits your lifestyle and budget.
How to download and save it
Conclusion
In conclusion, 2 bed 2 bath house plans are a popular choice for those seeking a comfortable and versatile living space. With their two bedrooms and two bathrooms, these plans offer the perfect balance of functionality and style. Ideal for small families, couples, or individuals, 2 bed 2 bath house plans come in a variety of designs to suit different tastes and preferences.
Whether you are looking to build a new home or renovate an existing one, a 2 bed 2 bath house plan could be the perfect solution for your needs. Consider the advantages of this layout, explore the design options available, and find the plan that fits your vision for your dream home. With a 2 bed 2 bath house plan, you can create a space that is not only beautiful and practical but also tailored to your unique lifestyle.

