5 Bedroom Ranch House Floor Plans: The Ultimate Guide
When it comes to spacious and comfortable living, nothing beats the charm of a 5 bedroom ranch house. With its sprawling layout and seamless design, a ranch house offers the perfect blend of luxury and practicality. In this article, we will explore the beauty and functionality of 5 bedroom ranch house floor plans, highlighting their unique features and appeal.
Knowledge
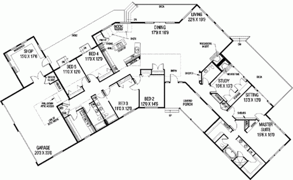
5 bedroom ranch house floor plans typically feature a single-story layout, making them ideal for families or individuals who prefer easy accessibility and seamless flow between rooms. These floor plans often include a master suite with a private bathroom and walk-in closet, as well as four additional bedrooms that can be used for family members, guests, or as a home office.
The common areas of a 5 bedroom ranch house usually consist of a spacious living room, dining area, and kitchen that are seamlessly connected to create an open-concept living space. Large windows and sliding glass doors are often featured in ranch house designs, allowing natural light to flood the interior and providing stunning views of the surrounding landscape.
Additional features that can be found in 5 bedroom ranch house floor plans include a dedicated laundry room, storage closets, a mudroom, and a two or three-car garage. Outdoor living spaces such as a patio, deck, or porch are also common in ranch house designs, providing residents with the perfect spot to relax and entertain guests.
Overall, 5 bedroom ranch house floor plans offer a perfect combination of style, comfort, and functionality, making them a popular choice for homeowners who value spacious living areas and a seamless flow between indoor and outdoor spaces.
How to download and save it
Conclusion
In conclusion, 5 bedroom ranch house floor plans are the epitome of luxury and practicality, offering homeowners a spacious and comfortable living environment that is perfect for families or individuals who value ease of access and seamless design. With their open-concept layouts, stunning views, and modern amenities, ranch houses are a timeless choice that continues to capture the hearts of homeowners across the country.
Whether you are looking to build your dream home or simply want to explore the beauty of ranch house designs, 5 bedroom ranch house floor plans are sure to impress. Their unique features and appeal make them a top choice for those who desire a perfect blend of style and functionality in their living space.

