Discover the Perfect 2 Bedroom Bath House Plans for Your Dream Home
Are you in the market for a cozy and functional 2 bedroom bath house plan to build your dream home? Look no further! In this article, we will explore everything you need to know about 2 bedroom bath house plans, from their layout and design to the benefits they offer. Whether you are a first-time home buyer, a small family, or a retiree looking to downsize, these house plans are versatile and cater to a wide range of needs and preferences.
Knowledge
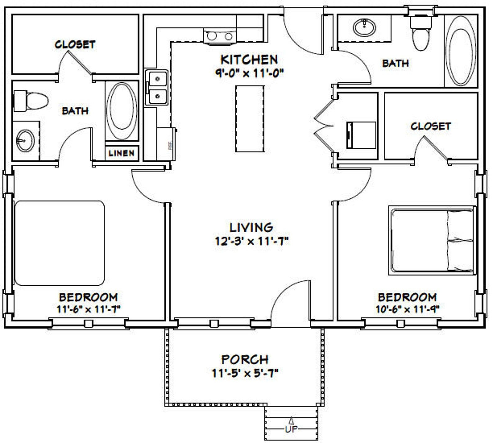
2 bedroom bath house plans are perfect for individuals or families who value simplicity, functionality, and efficiency in their living space. These plans typically feature two bedrooms, each with its own attached bathroom, providing privacy and convenience for the occupants. The open-concept layout of the common areas, such as the kitchen, dining, and living room, creates a spacious and airy feel, making the most of the available square footage.
One of the advantages of a 2 bedroom bath house plan is its flexibility. Whether you are a young professional looking for a starter home, a couple planning to start a family, or empty nesters downsizing from a larger house, these plans can be customized to suit your specific needs and lifestyle. From adding a home office or a guest room to incorporating energy-efficient features and smart home technology, the possibilities are endless.
When it comes to design, 2 bedroom bath house plans come in a variety of styles, from modern and contemporary to traditional and rustic. You can choose a single-story ranch-style home for easy accessibility and convenience or opt for a two-story design to maximize space and create separate living areas. With the right architect or designer, you can personalize the exterior and interior elements to reflect your taste and preferences, creating a home that is truly unique and tailored to you.
How to download and save it
When selecting a 2 bedroom bath house plan, it is essential to consider factors such as your budget, lot size, local building codes, and future needs. You can explore a wide range of pre-designed plans available online or work with a professional architect to create a custom design from scratch. Many websites offer downloadable house plans in various formats, allowing you to view and modify them using design software or seek the assistance of a professional to make any necessary adjustments.
Conclusion
In conclusion, 2 bedroom bath house plans are an excellent choice for individuals and families looking for a comfortable, functional, and stylish living space. With their versatility, flexibility, and customization options, these plans cater to a wide range of needs and preferences, making them a popular choice among homeowners. Whether you are building your first home, downsizing, or looking for a smart investment property, a 2 bedroom bath house plan offers the perfect balance of comfort and convenience.
Overall, the key strengths of 2 bedroom bath house plans lie in their efficient use of space, practical layout, and ability to adapt to changing needs over time. They are ideal for small families, couples, retirees, or anyone seeking a cozy and manageable home without compromising on style or functionality. The target audience for these house plans includes individuals looking for a cost-effective and low-maintenance living solution that does not sacrifice comfort or quality.
As the real estate market continues to evolve, the demand for compact and well-designed homes like 2 bedroom bath house plans is expected to grow. With their attractive features, customizable options, and timeless appeal, these plans offer a smart and sustainable housing solution for modern homeowners. Whether you are planning to build, renovate, or invest in a property, consider the benefits of a 2 bedroom bath house plan and make your dream home a reality.

