2 Bed 2 Bath House Floor Plans: The Ideal Layout for Modern Living
Are you looking for the perfect balance between space and functionality in your future home? Look no further than 2 Bed 2 Bath House Floor Plans. This popular layout offers a versatile and efficient design that is ideal for small families, couples, or individuals looking for a comfortable living space with all the essential amenities. In this article, we will explore the appeal of 2 Bed 2 Bath House Floor Plans and provide a comprehensive guide on everything you need to know about this layout.
Knowledge
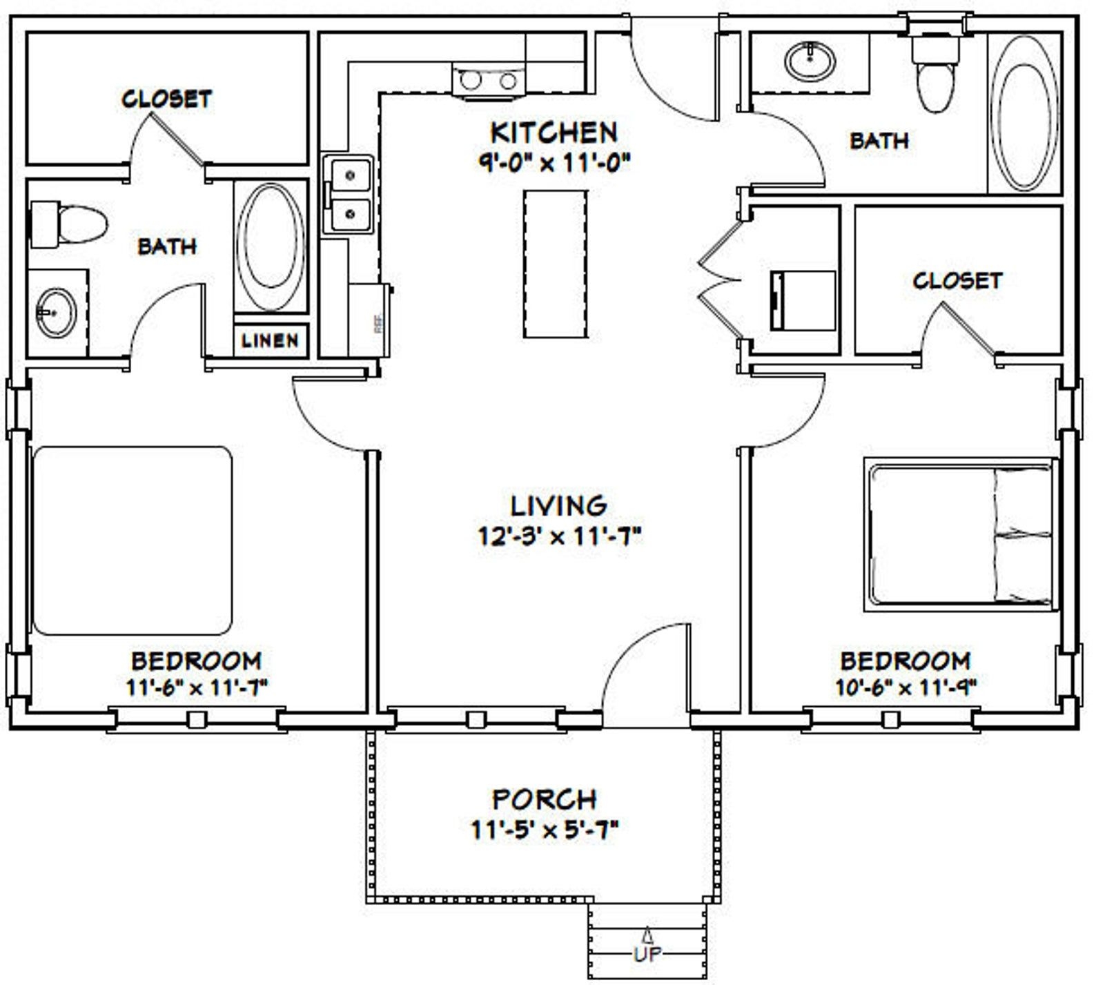
2 Bed 2 Bath House Floor Plans are designed to maximize space while providing a comfortable and functional living environment. The layout typically features two bedrooms, each with its own attached bathroom, a living room, a kitchen, and a dining area. This configuration is perfect for small families or roommates who desire privacy and convenience.
One of the key advantages of 2 Bed 2 Bath House Floor Plans is the flexibility they offer. The additional bathroom provides added convenience and privacy, making it easier for occupants to coexist harmoniously. Whether you have guests staying over or need a separate space for a home office, the extra bathroom can be a valuable asset.
Furthermore, the layout of 2 Bed 2 Bath House Floor Plans is well-suited for modern living. With an open-concept design, these floor plans create a seamless flow between the living room, kitchen, and dining area, making it easy to entertain guests or keep an eye on children while preparing meals. The bedrooms are typically located on opposite ends of the house, providing privacy and tranquility for each occupant.
When it comes to design options, 2 Bed 2 Bath House Floor Plans come in a variety of styles and sizes to suit different preferences and budgets. From cozy cottages to contemporary townhouses, there is a wide range of options available to cater to your specific needs. Whether you prefer a traditional or modern aesthetic, you can find a 2 Bed 2 Bath House Floor Plan that fits your taste.
How to download and save it
If you are interested in exploring 2 Bed 2 Bath House Floor Plans further, you can easily find a variety of options online. Many websites offer a wide selection of floor plans that you can browse and download for your reference. Whether you are looking for a pre-designed plan or want to customize your own, there are plenty of resources available to help you find the perfect layout for your future home.
Conclusion
In conclusion, 2 Bed 2 Bath House Floor Plans are a popular choice for those seeking a balance between space and functionality in their living space. With a versatile and efficient design, this layout offers privacy, convenience, and modern living amenities. Ideal for small families, couples, or individuals, 2 Bed 2 Bath House Floor Plans provide the perfect foundation for a comfortable and stylish home.
For those looking to invest in a property or build their dream home, 2 Bed 2 Bath House Floor Plans offer a practical and appealing option. With their flexible design, modern aesthetic, and convenience, these floor plans cater to a wide range of needs and preferences. Consider the benefits of 2 Bed 2 Bath House Floor Plans for your next living space and experience the comfort and functionality they provide.

