1200 Sq Feet House Plan: The Perfect Home Size for Comfort and Efficiency
When it comes to finding the ideal house plan, the 1200 Sq Feet House Plan stands out as a popular choice for many homeowners. This size offers a perfect balance between space and efficiency, making it an attractive option for families, couples, or individuals looking for a comfortable living space without excess square footage.
Knowledge
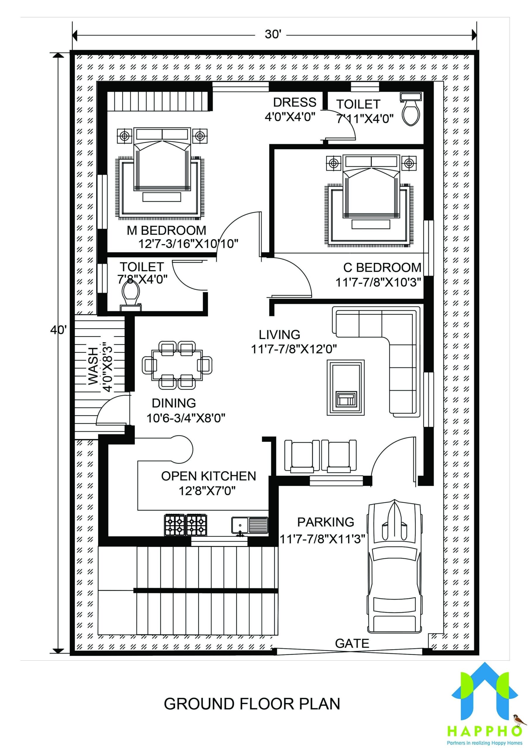
Understanding the layout and design of a 1200 Sq Feet House Plan is essential before making any decisions. This size typically includes two to three bedrooms, one to two bathrooms, a living room, kitchen, dining area, and possibly a small outdoor space. The layout is carefully designed to maximize every square foot, ensuring that each room serves a specific purpose while maintaining an open and airy feel throughout the house.
One of the key advantages of a 1200 Sq Feet House Plan is its versatility. This size can accommodate various lifestyles, whether you’re a growing family in need of extra bedrooms, a couple looking to downsize, or an individual seeking a cozy yet spacious home. The design options are endless, allowing you to customize the space to fit your unique needs and preferences.
Another benefit of a 1200 Sq Feet House Plan is its affordability. With a smaller footprint compared to larger homes, you can save on construction costs, maintenance, and utilities. This size is also easier to furnish and decorate, making it a budget-friendly choice for homeowners who want to create a stylish and comfortable living environment without breaking the bank.
Furthermore, the compact nature of a 1200 Sq Feet House Plan promotes energy efficiency and sustainable living. With less space to heat, cool, and light, you can reduce your carbon footprint and lower your utility bills. Additionally, a well-designed layout can optimize natural light and ventilation, enhancing the overall comfort and livability of the home.
How to download and save it
When it comes to selecting a 1200 Sq Feet House Plan, there are various resources available online where you can browse and download different designs. Many websites offer a wide range of floor plans and blueprints for this size, allowing you to explore different layouts, styles, and features to find the perfect fit for your lifestyle.
Once you’ve found a 1200 Sq Feet House Plan that meets your criteria, you can save it to your computer or print it out for reference. Be sure to consult with a professional architect or designer to review the plan and make any necessary modifications to suit your specific needs and preferences. With the right guidance and expertise, you can bring your dream home to life and create a comfortable and functional living space that you’ll love for years to come.
Conclusion
In conclusion, the 1200 Sq Feet House Plan offers a perfect balance of comfort, efficiency, and affordability for homeowners looking to downsize, upgrade, or build their dream home. With its versatile layout, energy-efficient design, and budget-friendly appeal, this size is an excellent choice for a wide range of individuals and families.
Whether you’re a first-time homebuyer, empty nester, or anyone in between, a 1200 Sq Feet House Plan can provide the space and functionality you need to create a cozy and welcoming living environment. Consider exploring different designs and options to find the perfect plan that suits your lifestyle and preferences.

